| 物件番号 | HO0173-01 |
|---|---|
| 物件名 | 高井田27-A:倉庫事務所(JM38)C室 |
| 階・号室 | 1~2階/C室 |
| 種別 | 倉庫<2階建倉庫兼事務所> |
| 所在地 | 東大阪市高井田 |
| 交通 | 大阪メトロ中央線 「 高井田 」駅 徒歩 3分 |
| 用途地域 | 第一種住居地域 |
| 竣工年月 | 平成 22 年( 2010 ) 11 月 |
| 構造 | 鉄骨造 ALC版貼 地上 2 階 建 |
| 接道 | 西側公道:5ⅿ 南側公道:7ⅿ |
| 使用面積 | 349.98 ㎡ (105.87坪 ) |
| 賃料 | ¥1,705,000 @16,105 |
| 共益費 | 無 |
| 月額合計 | ¥1,705,000 |
| 土地面積 | 1,157.45㎡(350.13坪) |
| 保証金 | ¥15,500,000 |
| 解約引 | ¥5,115,000 |
| 駐車場 | 有 前面空地・込み |
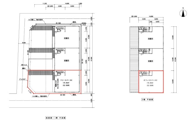
| 設備 | ★建物完了検査済証あり ★1F倉庫/作業場:175.00㎡(52.93坪) 2F事務所:175.00㎡(52.93坪) 延べ:350.00㎡(105.87坪) ★Ⓟ前面空地:数台可能 ★玄関ステンレスドア ★フォークリフト用電源 ★1Fスロップシンク、WC(WR便座) ★軽量電動シャッター:H3,600 W4,100 ★2F事務所部エアコン天井型 ★2F男女別WC(WR便座)・給湯室 ★天井高1F:3,800 2F:3,000 ★モニター付インターホン ■ご入居に伴う借主様負担改装・改造工事は貸主側指定業者にての施工条件となります |
| 備考 | ★現在賃貸中⇒2026年7月上旬~引渡し可 ★内覧手配致します ■借家人賠償付火災保険加入 ■仲介手数料=賃料1ヶ月分+消費税 |
| 取引態様 | 媒介 |
高井田27-A:倉庫事務所(JM38)C室
【阪神高速・東大阪JCT】すぐ・ハイクオリティ2階建倉庫/事務所延べ105坪・Ⓟ前面空地大!
アクセスマップ
お問合せ














