| 物件番号 | J0093-01 |
|---|---|
| 物件名 | 永田2-C:貸倉庫/事務所(JM140) |
| 階・号室 | 現在入居中につき 参考条件です |
| 種別 | 倉庫<2階建倉庫兼事務所> |
| 所在地 | 大阪市城東区永田 2丁目 |
| 交通 | 大阪メトロ中央線 「
深江橋 」駅 徒歩
10分 JR片町線 「 放出 」駅 徒歩 10分 |
| 用途地域 | 準工業地域 |
| 竣工年月 | 令和 5 年( 2023 ) 3 月 |
| 構造 | 鉄骨造 ALC版貼 地上 2 階 建 |
| 接道 | 南側公道・6ⅿ |
| 使用面積 | 492.00 ㎡ (148.83坪 ) |
| 賃料 | ¥2,596,000 @17,443 |
| 共益費 | 無 |
| 月額合計 | ¥2,596,000 |
| 土地面積 | 468.79㎡(141.81坪) |
| 保証金 | 10.0ヶ月 |
| 解約引 | 3.0ヶ月(+消費税) |
| 駐車場 | 有 前面空地・込み |
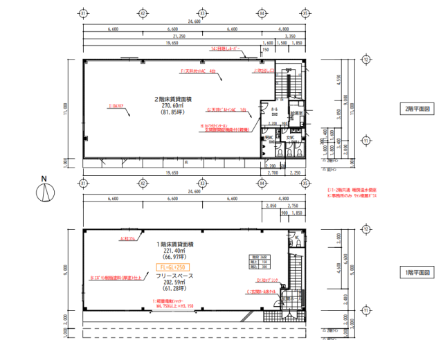
| 設備 | ★1F倉庫/作業場:221.40㎡(66.97坪) 2F事務所:270.60㎡(81.85坪) 延べ:492.00㎡(148.83坪) ★Ⓟ前面スペース:数台可能 ★Ⓟ隣地月極め:9台分(別途契約) ★玄関ステンレス両開ドア(防犯ガラス・電気錠) ★1Fスロップシンク、WC(WR便座) ★軽量電動シャッター:H3,150 W4,750 ★2F事務所部エアコン天井型:5台 ★2F男女別WC(WR便座)・給湯室 ★天井高1F:3,800 2F:2,700 ★モニター付インターホン ★2F:OAフロア ★LED照明 ■契約形態:【定期建物賃貸借契約】最長30年間 ■ご入居に伴う借主様負担改装・改造工事は貸主側指定業者にての施工条件となります |
| 備考 | ★現在賃貸中⇒2024年4月上旬~使用可 ★現地にてご説明致します ■借家人賠償付火災保険加入 ■仲介手数料=賃料1ヶ月分+消費税 |
| 取引態様 | 媒介 |
永田2-C:貸倉庫/事務所(JM140) 現在入居中のため、参考条件を記載しております。
★【新築】2024年3月末竣工のハイクオリティ2階建倉庫/事務所・余裕のⓅスペース完備です。
アクセスマップ
お問合せ













