| 物件番号 | HA0626-01 |
|---|---|
| 物件名 | 田能6-K:貸倉庫/事務所(P号) |
| 階・号室 | 1~2階/P号 |
| 種別 | 倉庫<2階建倉庫兼事務所> |
| 所在地 | 尼崎市田能 6丁目 |
| 交通 | JR福知山線 「 猪名寺 」駅 徒歩 |
| 用途地域 | 準工業地域 |
| 竣工年月 | 令和 6 年( 2024 ) 3 月 |
| 構造 | 鉄骨造 地上 2 階 建 |
| 接道 | 南側公道・4ⅿ |
| 使用面積 | 34.78 ㎡ (10.52坪 ) |
| 賃料 | ¥110,000 @10,456 |
| 共益費 | 込み - |
| 月額合計 | ¥110,000 |
| 土地面積 | - |
| 敷 金 | 1.0ヶ月 |
| 礼 金 | 1.0ヶ月 |
| 駐車場 | 有 敷地内1台枠付き |
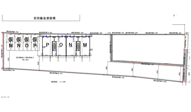
| 設備 | ・軽作業可能 ★1階倉庫/作業場:17.40㎡(5.26坪) 2階事務所:17.40㎡(5.26坪) 延べ:34.80㎡(10.52坪) ★Ⓟスペース:敷地内1台可(内部入庫も可) ★1階:電動シャッター・屋外水栓・簡易手洗い場・LED照明 ★2階:ウオシュレWC・簡易手洗い場・LED照明・エアコン ■階段は共用 |
| 備考 | ★現在空物件⇒引き渡し時期相談 ★内覧手配致します ■賃貸保証契約要(別途、保証料・年更新料要) ■借家人賠償付火災保険加入:22,500円/2年 ■仲介手数料=賃料1ヶ月分+消費税 |
| 取引態様 | 媒介 |
田能6-K:貸倉庫/事務所(P号)
2024年10月竣工【築浅・コンテナ式2階建倉庫/事務所】・倉庫/事務所/車庫3つの機能あり!
アクセスマップ
お問合せ
















