| 物件番号 | M0143-01 |
|---|---|
| 物件名 | 小野原東1-E:貸倉庫/事務所 |
| 階・号室 | 1~2階/建物全部 |
| 種別 | 倉庫<2階建倉庫兼事務所><大通り沿い> |
| 所在地 | 箕面市小野原東 1丁目 |
| 交通 | 大阪モノレール 「 豊川 」駅 徒歩 11分 |
| 用途地域 | 第一種中高層住居専用地域 |
| 竣工年月 | 令和 8 年( 2026 ) 5 月 |
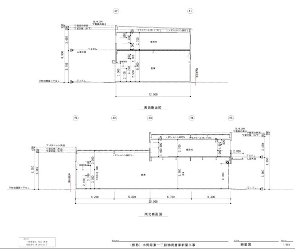
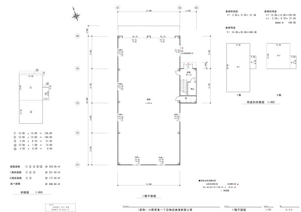
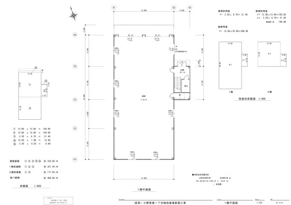
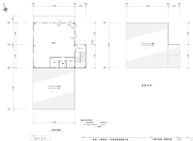
| 構造 | 鉄骨造 地上 2 階 建 |
| 接道 | 北側公道:30ⅿ |
| 使用面積 | 498.84 ㎡ (150.9坪 ) |
| 賃料 | ¥1,650,000 @10,934 |
| 共益費 | 無 |
| 月額合計 | ¥1,650,000 |
| 土地面積 | 1,118.58㎡(338.37坪) |
| 敷 金 | 相談 |
| 礼 金 | 相談 |
| 駐車場 | 有 空地部分・込み |
| 設備 | ★1階:321.44㎡(97.23坪)倉庫/作業場/車庫など 2階:177.44㎡(53.67坪)事務所/作業場など 延べ:498.88㎡(150.90坪) ★Ⓟ前面空地:数台可能 ★電動シャッター ★他、仕様書参照 ■借主様負担:警部費・消防点検費・ゴミ処理・水道光熱費 |
| 備考 | ★現在建設中⇒2026年5月末完成予定~6月以降で引き渡し時期相談 ★現地にてご説明致します。 ■借家人賠償付火災保険加入 ■仲介手数料=賃料1ヶ月分+消費税 |
| 取引態様 | 媒介 |
小野原東1-E:貸倉庫/事務所
【R171】沿いの立地・【新築】2026年5月完成予定・2階建大型倉庫事務所~延べ150坪です!
アクセスマップ
お問合せ












