| 物件番号 | MR0035-01 |
|---|---|
| 物件名 | 豊秀町1-G:貸倉庫/事務所 |
| 階・号室 | 1~2階/建物全部 |
| 種別 | 倉庫<2階建倉庫兼事務所> |
| 所在地 | 守口市豊秀町 1丁目 |
| 交通 | 大阪メトロ谷町線 「
太子橋今市 」駅 徒歩
2分 京阪本線 「 土井 」駅 徒歩 7分 |
| 用途地域 | 近隣商業地域 |
| 竣工年月 | 平成 21 年( 2009 ) 9 月 |
| 構造 | 鉄骨造 ALC版貼 地上 2 階 建 |
| 接道 | 北西側公道:7ⅿ |
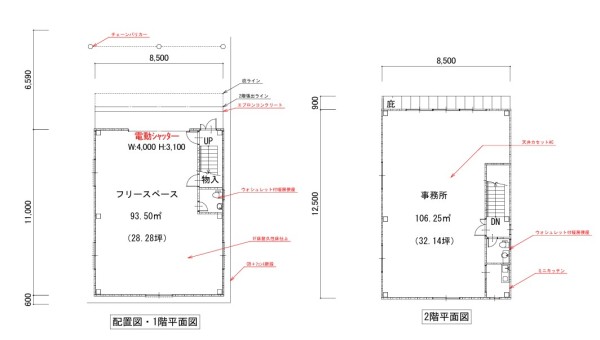
| 使用面積 | 199.74 ㎡ (60.42坪 ) |
| 賃料 | ¥990,000 @16,385 |
| 共益費 | 無 |
| 月額合計 | ¥990,000 |
| 土地面積 | 181.65㎡(54.95坪) |
| 保証金 | ¥9,000,000 |
| 解約引 | ¥2,970,000 |
| 駐車場 | 有 前面空地・込み |
| 設備 | ★1階:93.50㎡(28.28坪)倉庫/作業場 2階:106.25㎡(32.14坪)事務所 延べ:199.75㎡(60.42坪) ★Ⓟ前面空地:3台程度可 ★ウオシュレWC2箇所、流し台、照明 ★電動シャッターH3,100×W4,000 ★2F:エアコン ★フォークリフト充電用電源 ★天高:1階3,500 ■借主様にての改装・改造工事は貸主指定業者施工が条件となります |
| 備考 | ★現在賃貸中⇒2026年5月上旬以降で引き渡し時期相談 ★内覧手配致します ■借家人賠償付火災保険加入:指定損保無し ■仲介手数料=賃料1ヵ月分+消費税 |
| 取引態様 | 媒介 |
豊秀町1-G:貸倉庫/事務所
【内環状線】【R1】すぐの立地・2階建倉庫/事務所~延べ60坪・Ⓟ前面スペース完備です!
アクセスマップ
お問合せ













