| 物件番号 | J0095-01 |
|---|---|
| 物件名 | 鴫野西5-A:貸倉庫/事務所(JM155) |
| 階・号室 | 1~2階/建物全部 |
| 種別 | 倉庫<2階建倉庫兼事務所> |
| 所在地 | 大阪市城東区鴫野西 5丁目 |
| 交通 | JRおおさか東線 「
鴫野 」駅 徒歩
5分 大阪メトロ今里筋線 「 鴫野 」駅 徒歩 6分 |
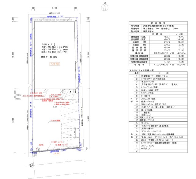
| 用途地域 | 準工業地域 |
| 竣工年月 | 令和 7 年( 2025 ) 7 月 |
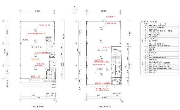
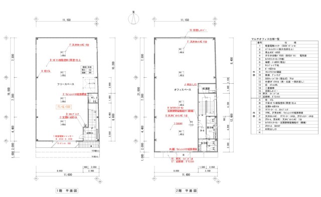
| 構造 | 鉄骨造 ALC版貼 地上 2 階 建 |
| 接道 | 南側公道・8ⅿ |
| 使用面積 | 455.44 ㎡ (137.77坪 ) |
| 賃料 | ¥2,145,000 @15,569 |
| 共益費 | 無 |
| 月額合計 | ¥2,145,000 |
| 土地面積 | 482.68㎡(146.01坪) |
| 保証金 | ¥19,500,000 |
| 解約引 | ¥6,435,000 |
| 駐車場 | 有 前面空地・込み |
| 設備 | ・キュービクル ★1F倉庫/作業場:216.12㎡(65.37坪) 2F事務所:239.32㎡(72.39坪) 延べ:455.44㎡(137.77坪) ★Ⓟ前面スペース:数台可能 ★キュービクル:容量(105KVA) ★1F玄関扉:電気錠付 ★1Fスロップシンク、WC(WR便座) ★軽量電動シャッター:H3,150 W4,150 ★1F倉庫部エアコン天井型:4台 ★2F事務所部エアコン天井型:4台 ★2F男女別WC(WR便座)・給湯室 ★天井高1F:3,800 2F:2,700 ★モニター付インターホン ★2F:OAフロア ★LED照明 ★オール電化 ■ご入居に伴う借主様負担改装・改造工事は貸主側指定業者にての施工条件となります |
| 備考 | ★現在空物件⇒即時引渡し可 ★内覧手配致します ■借家人賠償付火災保険加入 ■仲介手数料=賃料1ヶ月分+消費税 |
| 取引態様 | 媒介 |
鴫野西5-A:貸倉庫/事務所(JM155)
★【新築】2025年7月竣工のハイクオリティ2階建倉庫/事務所・余裕のⓅスペース完備です!
アクセスマップ
お問合せ













