| 物件番号 | KH0004-01 |
|---|---|
| 物件名 | 和田宮通3-A:貸倉庫/事務所(JM141) |
| 階・号室 | 1~2階/建物全部 |
| 種別 | 倉庫<2階建倉庫兼事務所> |
| 所在地 | 神戸市兵庫区和田宮通 3丁目 |
| 交通 | JR山陽本線 「
和田岬 」駅 徒歩
4分 神戸市営大阪メトロ海岸線 「 和田岬 」駅 徒歩 4分 |
| 用途地域 | 準工業地域 |
| 竣工年月 | 令和 6 年( 2024 ) 4 月 |
| 構造 | 鉄骨造 ALC版貼 地上 2 階 建 |
| 接道 | 北側公道:8ⅿ |
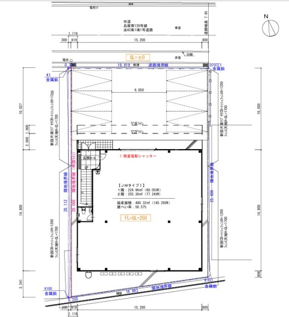
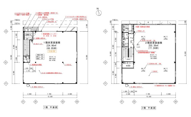
| 使用面積 | 480.30 ㎡ (145.29坪 ) |
| 賃料 | ¥2,090,000 @14,385 |
| 共益費 | 無 |
| 月額合計 | ¥2,090,000 |
| 土地面積 | 459.87㎡(139.11坪) |
| 保証金 | ¥19,000,000 |
| 解約引 | ¥6,270,000 |
| 駐車場 | 有 前面空地・込み |
| 設備 | ・大型車進入可能 ★1F倉庫/作業場:224.96㎡(68.05坪) 2F事務所:255.36㎡(77.24坪) 延べ:480.32㎡(145.29坪) ★Ⓟ前面ヤード:数台可能 ★玄関ステンレス両開ドア(電気錠・防犯ガラス) ★フォークリフト用電源 ★1Fスロップシンク、WC(WR便座) ★軽量電動シャッター:H3,150 W4,150 ★2F事務所部エアコン天井型:5台 ★2F男女別WC(WR便座)・給湯室 ★天井高1F:3,700 2F:2,700 ★モニター付インターホン ★2F:OAフロア ★LED照明 ■ご入居に伴う借主様負担改装・改造工事は貸主側指定業者にての施工条件となります |
| 備考 | ★現在賃貸中⇒2026年5月上旬~使用可 ★内覧手配致します ★資料メール送信はお問い合わせ下さい ■借家人賠償付火災保険加入 ■仲介手数料=賃料1ヶ月分+消費税 |
| 取引態様 | 媒介 |
和田宮通3-A:貸倉庫/事務所(JM141)
【築浅】2024年4月竣工予定・ハイクオリティ2階建倉庫/事務所~延べ145坪・Ⓟヤード完備!
アクセスマップ
お問合せ























